Beschrijving
Aan de statige Stadhouderslaan, in het gewilde Nassaukwartier, staat deze zorgvuldig gemoderniseerde jaren ’30 hoekwoning met een woonoppervlakte van 161 m², een vrijstaande stenen garage, oprit voor twee auto’s en een fraai aangelegde achtertuin. De woning is gelegen op een perceel van 234 m² op een rustige, boomrijke locatie op korte afstand van scholen, winkels, park, openbaar vervoer en de historische binnenstad van Schiedam.
De woning is in 2021 grondig en smaakvol gerenoveerd, waarbij originele stijlelementen zoals glas-in-lood en karakteristieke bouwdetails behouden zijn gebleven. De modernisering is met hoogwaardige materialen uitgevoerd, waardoor comfort, afwerkingsniveau en duurzaamheid voldoen aan de eisen van deze tijd.
Indeling
Bij binnenkomst valt direct de royale en lichte L-vormige woonkamer op. De grote ramen bieden uitzicht op de singel aan de voorzijde en zorgen voor veel lichtinval. De open haard vormt een sfeervol middelpunt en via dubbele openslaande deuren loopt u zo de achtertuin in.
De luxe open keuken (2021) bevindt zich aan de tuinzijde en is uitgerust met o.a. een keramische kookplaat, vaatwasser, koelkast, oven en rvs-afzuigkap. Ook vanuit de keuken is er toegang tot de tuin.
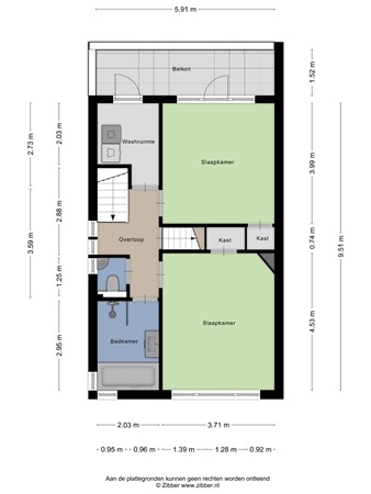
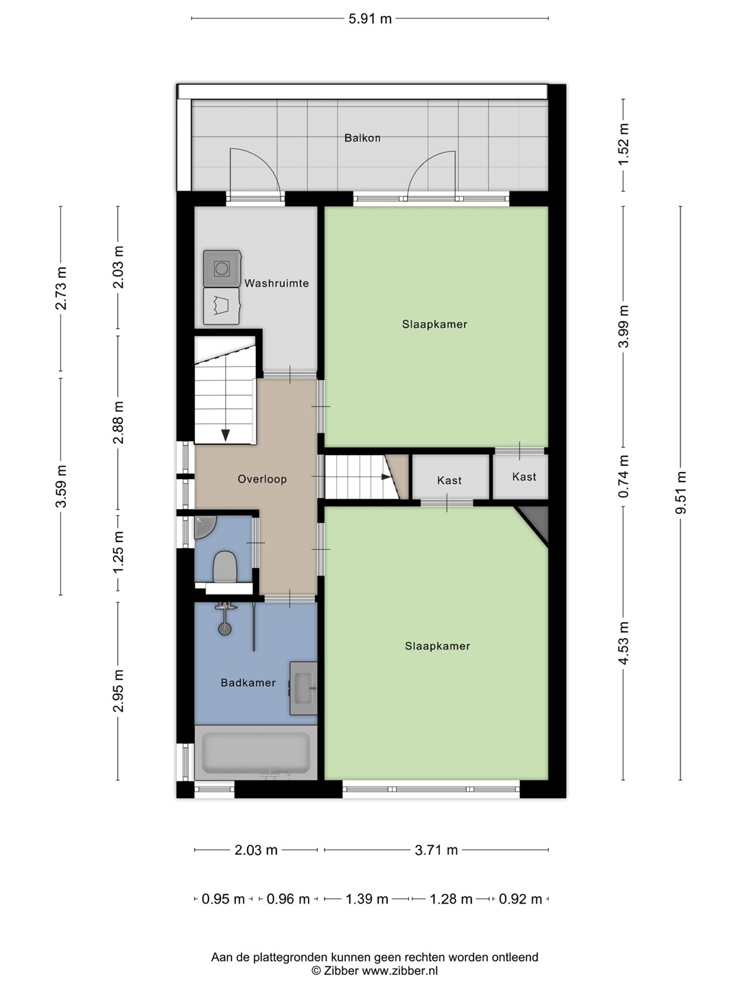
Op de eerste verdieping bevinden zich twee ruime slaapkamers, een moderne toiletruimte (2021), een luxe badkamer met inloopdouche, ligbad, wastafelmeubel en designradiator, en een praktische waskamer. De achterslaapkamer heeft directe toegang tot het balkon.
De tweede verdieping beschikt over twee volwaardige slaapkamers met dakkapellen en extra bergruimte onder het dakbeschot.
Buitenruimte en garage
De woning beschikt over een voortuin, zijtuin en een zonnige achtertuin van in totaal 125 m². Dankzij de eigen oprit is er ruimte voor twee auto’s. De vrijstaande stenen garage biedt volop opslag- en gebruiksmogelijkheden; de garagedeur is elektrisch te openen.
Locatie
De woning ligt in het populaire en kindvriendelijke Nassaukwartier. Winkels, scholen, openbaar vervoer, restaurants en het stadspark bevinden zich in de directe omgeving. De snelwegen A13, A20 en A15 zijn binnen enkele minuten te bereiken.
Bijzonderheden
• Bouwjaar 1928
• Woonoppervlakte ca. 161 m²
• Perceeloppervlakte 234 m²
• Vier slaapkamers en een waskamer
• Vrijstaande stenen garage met elektrische deur
• Eigen oprit voor twee auto’s
• Hoogwaardige renovatie uitgevoerd in 2021
• Gelegen aan de Stadhouderslaan in het populaire Nassaukwartier
• Alarminstallatie aanwezig
• Buitenschilderwerk behoeft deels onderhoud
• Oplevering in overleg
Interesse?
Een unieke kans om een prachtig, luxe en instapklaar jaren ’30 familiehuis op een toplocatie te bezichtigen. Maak snel een afspraak en ervaar zelf de ruimte, afwerking en sfeer van deze woning.
Disclaimer
Deze informatie is met de nodige zorgvuldigheid samengesteld. Er wordt echter geen aansprakelijkheid aanvaard voor eventuele onvolledigheden, onjuistheden of de gevolgen daarvan. Alle opgegeven maten en oppervlakten zijn indicatief.