Beschrijving
In de karakteristieke wijk Oud-Mathenesse bieden wij dit 3-kamerappartement van circa 53 m² aan, gelegen in een portiekflat uit 1940. De woning beschikt over twee slaapkamers, een balkon en een royale inpandige berging van maar liefst 12 m² in de onderbouw. Een uitstekende kans voor starters die betaalbaar willen wonen en de woning naar eigen smaak willen moderniseren.
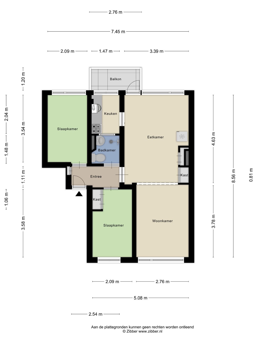
Indeling en kenmerken
Via de portiek bereikt u de entree van de woning. De hal geeft toegang tot alle vertrekken. De woonkamer is prettig licht dankzij de grote raampartijen en vormt het centrale leefgedeelte van het appartement. Vanuit de woonkamer heeft u direct toegang tot het zonnige balkon.
De keuken is compact en functioneel ingericht. Door de eenvoudige afwerking biedt de woning een uitstekende basis om geheel naar eigen inzicht te moderniseren. Met relatief beperkte ingrepen creëert u hier een eigentijdse starterswoning op een fijne locatie.
Het appartement beschikt over twee slaapkamers, waarvan één uitstekend geschikt is als hoofdslaapkamer en de tweede als werk-, kinder- of logeerkamer. De badkamer is eenvoudig uitgevoerd.
Een groot pluspunt is de ruime inpandige berging van circa 12 m² in de onderbouw – ideaal voor fietsen, opslag of hobbyruimte. Daarnaast is er binnen de portiek een aparte gezamenlijke wasruimte aanwezig. De woning is voorzien van kunststof kozijnen met dubbele beglazing, wat bijdraagt aan het wooncomfort.
Wonen in Oud-Mathenesse
Oud-Mathenesse is een wijk met karakter, gekenmerkt door vooroorlogse architectuur en een centrale ligging tussen Rotterdam en Schiedam. In de directe omgeving vindt u diverse winkels, supermarkten en voorzieningen. Het Dakpark, openbaar vervoer (o.a. Marconiplein) en uitvalswegen zoals de A20 en A4 zijn goed bereikbaar, wat deze locatie zeer praktisch maakt.
Bijzonderheden
• Vraagprijs € 230.000,- k.k.
• Bouwjaar 1940
• Woonoppervlakte ca. 53 m²
• 2 slaapkamers
• Balkon bereikbaar vanuit de woonkamer
• Kunststof kozijnen met dubbele beglazing
• Inpandige berging ca. 12 m² in de onderbouw
• Gezamenlijke wasruimte in de portiek
• Energielabel: C
• Gelegen op eigen grond
• Oplevering in overleg
Bent u op zoek naar een betaalbare woning met potentie op een centrale locatie? Dan nodigen wij u graag uit om Finsestraat 45-B zelf te komen bekijken en de mogelijkheden met eigen ogen te ervaren.
Disclaimer
Deze informatie is door ons met de nodige zorgvuldigheid samengesteld. Onzerzijds wordt echter geen enkele aansprakelijkheid aanvaard voor eventuele onvolledigheid, onjuistheid of de gevolgen daarvan. Alle opgegeven maten en oppervlakten zijn indicatief.